
Otroška postelja na podestu CLP
Podarite svojemu otroku deželo sanj in dogodivščin z našim klasičnim, lesenim pogradom! Izdelan iz visokokakovostnega borovega lesa, zagotavlja trajnost in varnost skozi leta. Njegov brezčasni dizajn se prilega vsaki sobi, naravni leseni zaključek pa v notranjost vnaša toplino in harmonijo. Idealna rešitev za brate in sestre ali nočna druženja s prijatelji – maksimira prostor, hkrati pa vsakemu zagotavlja svoj udoben kotiček za spanje. Ne le funkcionalen, temveč tudi varen, z zaobljenimi robovi in stabilno konstrukcijo, ki zagotavlja miren spanec.

Zakaj izbrati to posteljo?
Izbira našega klasičnega pograda iz borovega lesa je naložba v trajnost, varnost in vsestranskost. Borov les ne zagotavlja le trdnosti konstrukcije, temveč v prostor vnaša tudi toplino in naravni čar. Njegov brezčasni dizajn se zlahka prilagodi vsaki ureditvi, funkcionalnost pograda pa optimalno izkorišča prostor, idealno za majhna stanovanja in še več.
Lastnosti izdelka:
- Varni materiali: Pograd je izdelan iz lepljenega borovega lesa 1. razreda, ki je trpežen in varen za otroke. Les je brez grč. Elementi so brušeni in gladko ščetkani.
- Letveno dno: Letveno dno je dodano brezplačno in ga sestavljajo prožne letvice.
- Univerzalna estetika: Naravni leseni zaključek poskrbi, da se pograd odlično prilega vsaki otroški sobi, ne glede na njeno temo ali barvo.
- Maksimalna obremenitev pograda: Največja obremenitev pograda je 60 kg za zgornjo raven in 90 kg za spodnjo.
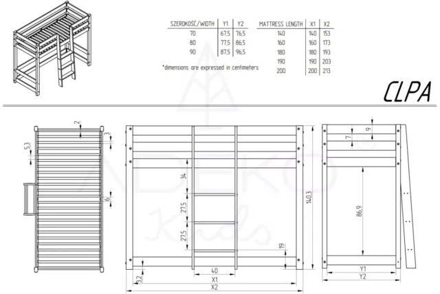
- Oddaljenost od tal do zgornjega ležišča – 99 cm.
- Oddaljenost med zgornjim in spodnjim ležiščem – 87cm.
- Materac: Materac ni vključen v komplet – lahko pa izberete materac na naši spletni strani v zavihku “materaci”. Velikost pograda = velikost materaca. Materac mora biti debel 12 cm.
- Montaža: Montaža v lastni režiji – v paketu boste prejeli vse elemente, potrebne za montažo, in dostop do preprostih navodil za montažo.
- Navodila za nego: Da bi pograd ohranili v popolnem stanju, ga preprosto obrišite z vlažno krpo.
- Pomembne informacije: Pograd je namenjen otrokom, ki lahko samostojno spijo.
- Zgornja raven pograda je namenjena otrokom, starejšim od 6 let, spodnja raven pa otrokom, starejšim od 3 let.
- Dodatne možnosti:
- Povišanje nog +10 cm in +20 cm. Izbira možnosti povišanja spodnjega ležišča ne bo povečala celotne višine konstrukcije. Ta možnost poviša samo spodnjo raven.
- Ograja – velja za spodnjo raven pograda. Stran sprednje ograje izberete med montažo, lahko je tako na levi kot na desni strani.

Tehnični podatki:
- Garancija: 2 leti
- Material: Borov les
- Kvaliteta lesa: 1. razred
- Lakiran les: Ne
- Barva lesa: Naravna
- Letveno dno: Da (brezplačno)
- Materac: Ne
- Teža: 50 kg
- Dovoljena obremenitev (zgoraj): 60 kg
- Montaža: Samostojna montaža
- Varnost: Ustreza standardu EN 747-1:2024
- Navodila za montažo: Da
- Komplet vijakov: Da
- Dodatne informacije: POZOR! Zgornja raven pograda je namenjena otrokom od 6. leta starosti.















